DH303 - Insulated Dog House Plans - Dog House Design
How To Build An Insulated Dog House
DH303 - Insulated Dog House Plans - Dog House Design
How To Build An Insulated Dog House
...
Principles of design
Durability & Comfortable
"Durability"_"Insulation"_"Ventilation"_"Easy to Clean"
...
Units: Inches - fractions
...
...
Principles of design
Durability & Comfortable
"Durability"_"Insulation"_"Ventilation"_"Easy to Clean"
...
Units: Inches - fractions
...
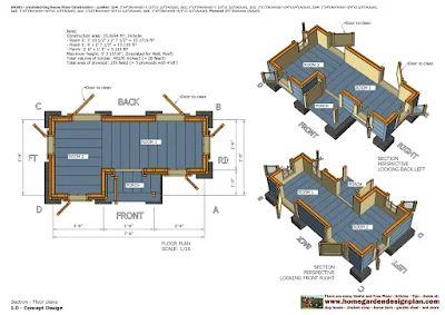
Construction area: 35.0694 ft²; Include:
- Room 2: 3' 10 1/2" x 2' vii 1/2" = 10.1719 ft²
- Room 1: 5' x 2' vii 1/2" = 13.125 ft²
- Porch: 2' 6" x 1' 3" = 3.125 ft²
Maximum height: 5' three 13/16"; (Insulated for Wall, Roof)
Total mass of lumber: 48276 inches3 (= 28 feet3)
Total expanse of plywood: 159 feet2 (= v plywoods alongside 4'x8')
...
Dimensional lumber sizes: 4x4: 4"x4"(Nominal)=3 1/2"x3 1/2"(Actual);
2x4: 2"x4"(Nominal)=1 1/2"x3 1/2"(Actual); 2x2: 2"x2"(Nominal)=1 1/2"x1 1/2"(Actual);
1x1: 1"x1"(Nominal)=3/4"x3/4"(Actual); 1x4: 1"x4"(Nominal)=3/4"x3 1/2"(Actual);
1x3: 1"x3"(Nominal)=3/4"x2 1/2"(Actual); 1x2: 1"x2"(Nominal)=3/4"x1 1/2"(Actual);
1x6: 1"x6"(Nominal)=3/4"x5 1/2"(Actual); Plywood 3/4" thickness (Actual);
...
The functional element - the construct footstep lead - Table of Contents:
1.0 - Concept Design
2.0 - Building foundations
3.0 - Building Floor
4.0 - Building Frame
5.0 - Building Floor
6.0 - Building Interior Walls
7.0 - Building Roof Beam
8.0 - Building Frame of Door, Windows, Vents
9.0 - Building Insulated Foam for Roof
10.0 - Building Insulated Foam for Wall
11.0 - Building Exterior Wall
12.0 - Building Roof
13.0 - Building Door, Windows
...
DH303 - Insulated Dog House Plans - Dog House Design
How To Build An Insulated Dog House
...
Detailed Plans for Construction
(PDF, Excel file: Units: Inches - fractions
printed on A4 or A3 size paper)
https://app.box.com/s/pmqsncqu9jjgwl28izu0cpp7uivo9cuu
Or Google campaign link:
https://drive.google.com/folderview?id=0B0CDo6ffOvQLdDJ5aGxIbEVWdTg&usp=sharing#list
...
Thank you lot really much!
Let kicking the bucket on rails my piece of job to larn alot of Free in addition to Useful Plans
...
DH303 - Insulated Dog House Plans
Dog House Design - How To Build An Insulated Dog House
















